Key Details
Highlights
- Bespoke glass lift serving all floors
- Cinema room with drop-down screen and projector
- Full AV system with hidden speakers and Control4 automation
- Gas fireplaces, exterior firepit and wine cellar
- Landscaped Garden
Amenities
- Air Conditioning
- Underfloor Heating
- Gym
- Off Street Parking
- Lutron Lighting
Exterior
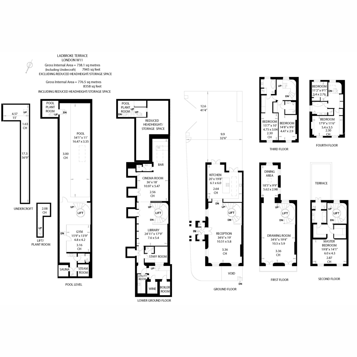
The house has been subject to a six year redevelopment and refurbishment programme and has the benefit of being newly build but retaining a classical exterior. The house stretches to approximately 8,000 sq ft. On the ground floor there is a wonderful sense of arrival through large double doors and there is an abundance of entertaining space flowing into the bright kitchen which leads out into the garden.
Interior
On the first floor there is a grand classically proportioned drawing room with leafy green views over Ladbroke Square. The house has the added benefit of being opposite the entrance to Ladbroke Square gardens as well as having access. This is one of the largest gardens in London and covers around seven acres. On the second floor there is a sumptuous master bedroom suite with a private terrace and upstairs there are four further bedrooms. Also of note is the bespoke glass elevator, the state of the art media room as well a magnificent 17 metre swimming pool, gym, wine room and separate staff accommodation. To the rear of the house there is a newly landscaped garden as well as off street parking which is set behind large private gates.
Location
Ladbroke Terrace ideally located in the heart of Notting Hill, running northwards off Holland Park Avenue and is parallel to Ladbroke Grove. This imposing residential street is conveniently located within walking distance of the cafes, coffee shops restaurants and boutiques of Westbourne Grove as well as the open spaces of Holland Park. As well as transport link to the tube stations at Holland Park on the Central line and Notting Hill Gate on the Central, Circle and District lines.
Additional
- EPC Rating: D
- Council Tax Band: H
- Local Authority: Kensington and Chelsea
- Tenure: Freehold
Get in Touch
Get in Touch

Kay Louise Smith
Sales Consultant / Mayfair Head Office
Property Ref: LOB604723